広々ルーフバルコニー搭載!
収納豊富/2台並列駐車可能/設備充実
=おすすめポイント=
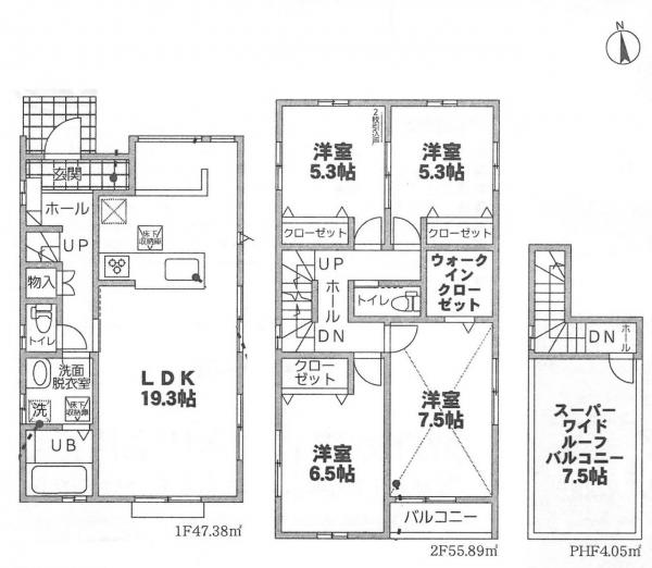
□広々ルーフバルコニー搭載
洗濯物を干したり、テーブルなどを置いてカフェテラスにしたり、
使い勝手様々な7.5帖のルーフバルコニー搭載
□収納豊富な間取り
主寝室にはWIC、キッチン後ろには広々パントリー、玄関にはフリースペースなど、
収納力が豊富で使い勝手の良い間取りです。
□カースペースは2台分
来客時や、夫婦で1台ずつなどもできる駐車スペース2台分。
どちらかが停めていても出し入れ可能な並列駐車です。

























